Home
Interactive Architecture
Services
About
Contact Us
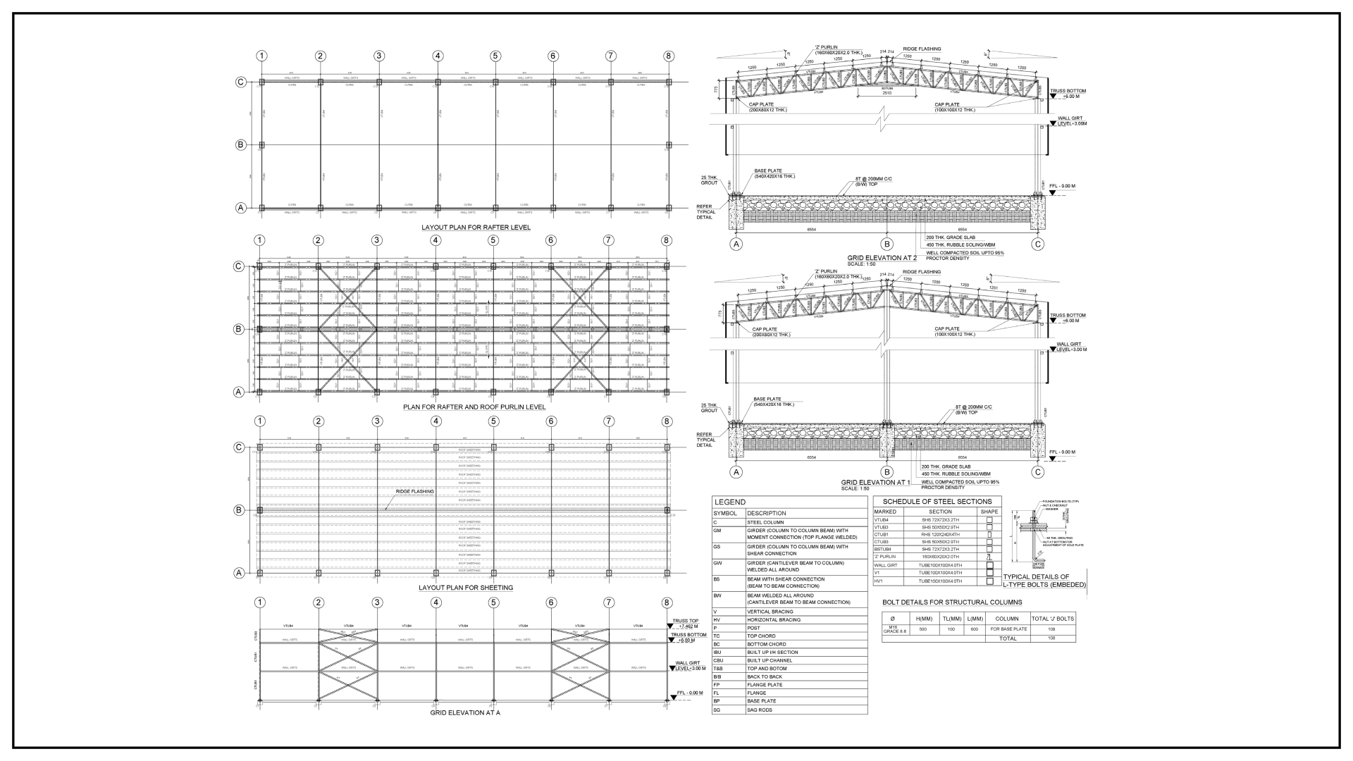
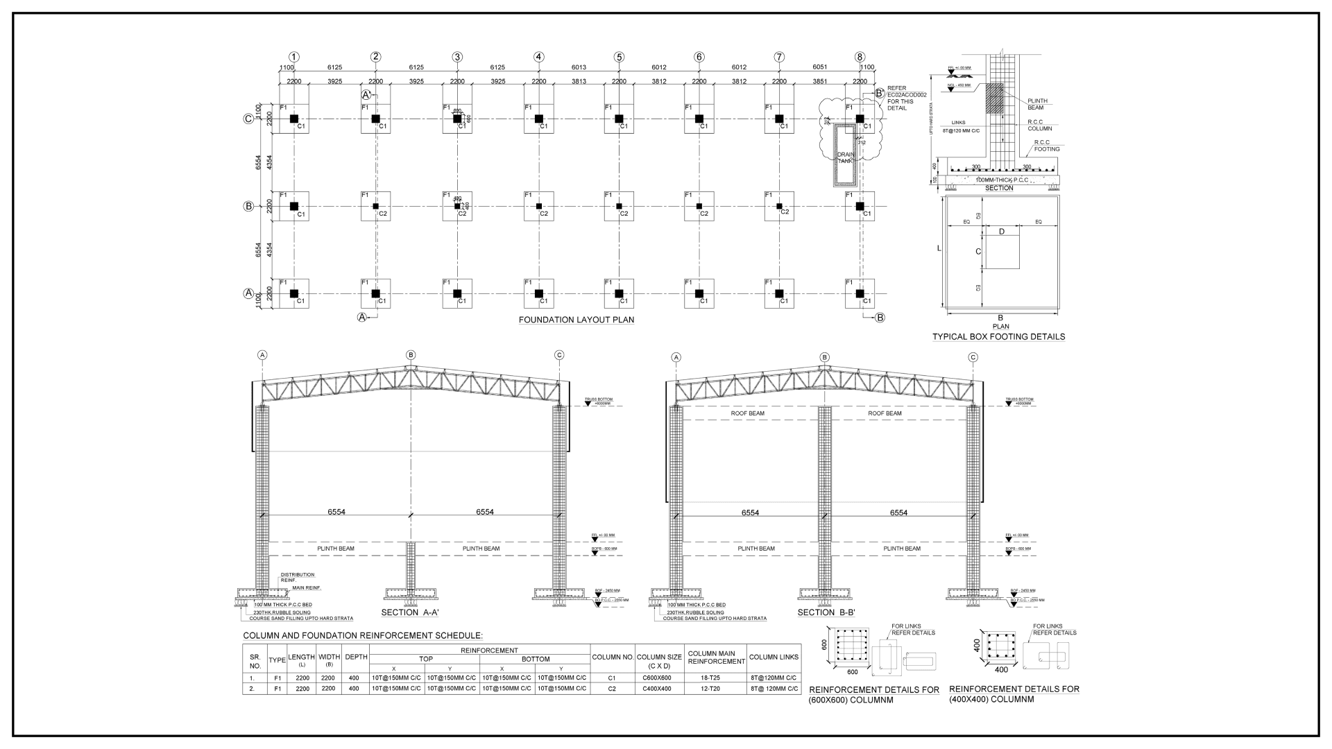
Structural Design and Drafting Sample - 4
Contact
213 Larkin Pl 104 Unit St Johns, Fl 32259-6987
+1 (732) 766 3898
|
+91 98819 02247
hmsomayya@prysoms.com
© Copyright 2026 - Prysom Solutions. All Rights Reserved.