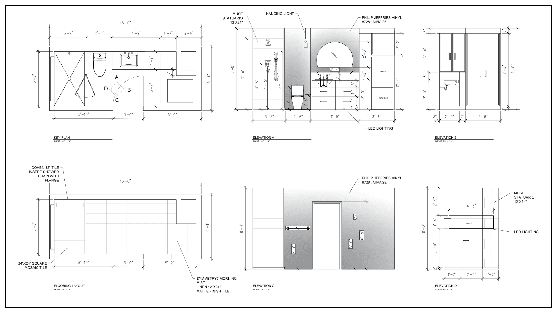
CAD Drafting Sample 3

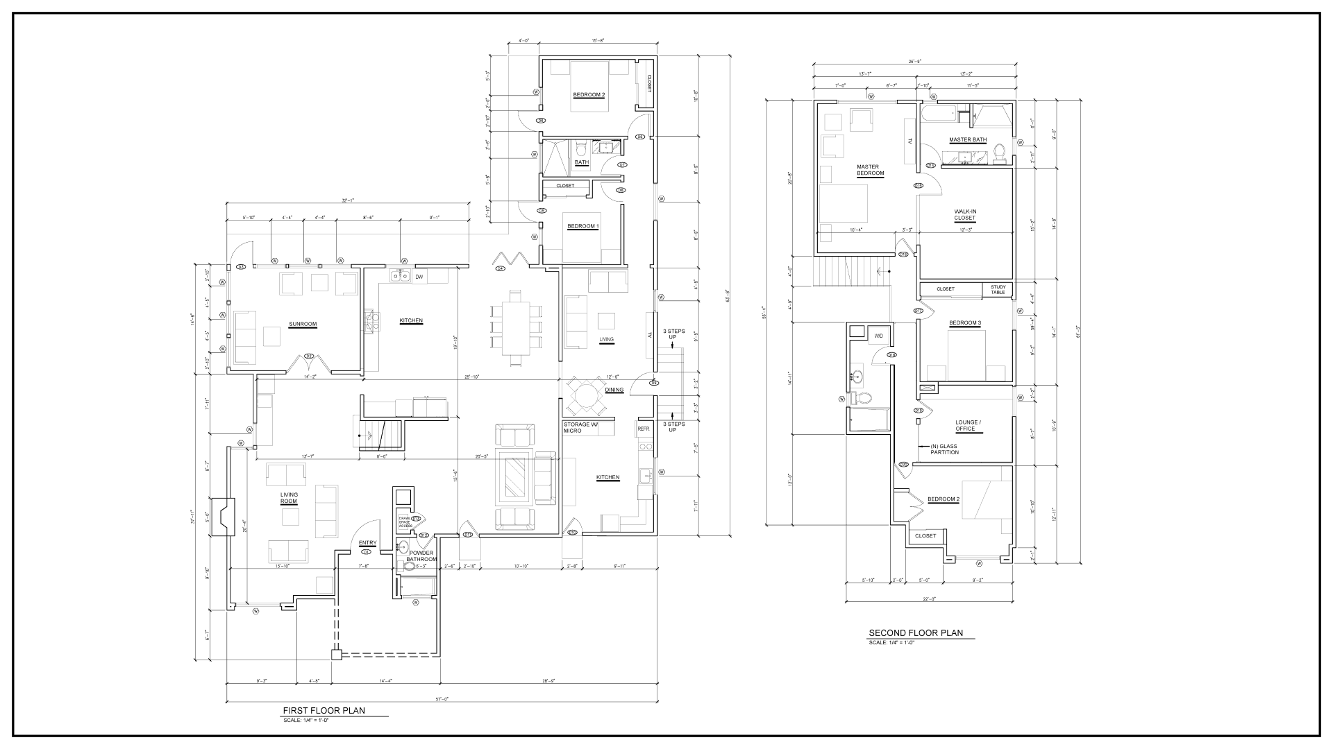
CAD Drafting Sample 3
© Copyright 2026 - Prysom Solutions. All Rights Reserved.

© Copyright 2026 - Prysom Solutions. All Rights Reserved.